09_IS_03.JPG

Casa Curva

 
 

Casa Curva

 
 

A casa unifamiliar existente, integrada num conjunto de moradias em banda construídas na década de 1980, apresentava uma linguagem corrente à época. O seu logradouro divide-se em dois, um de acesso, na frente de rua e outro mais privado e de uso doméstico, a tardoz. 

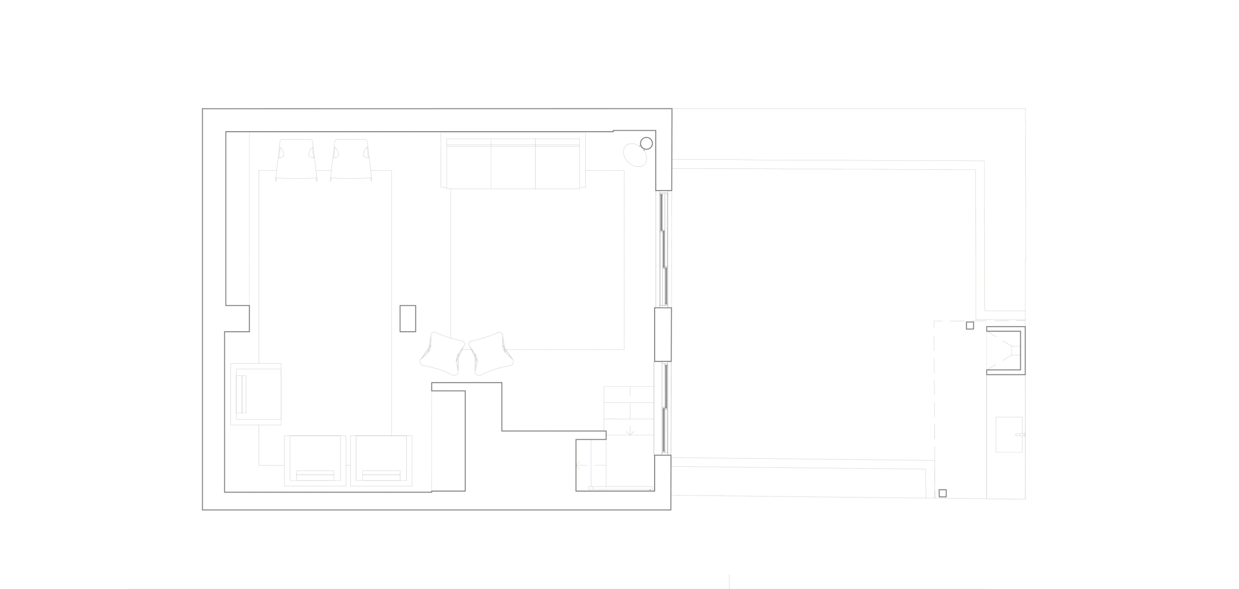
A intervenção passou por requalificar todo o espaço interno, repensando o uso e a articulação entre os 4 pisos pelos quais se distribuem as suas áreas, incluindo o pátio afeto ao piso inferior.

 À cota da entrada, a cozinha e espaço de refeições, distribuem para o piso inferior, piso superior e sótão. No piso abaixo, criou-se uma grande zona de estar semi-enterrada, que articula com o pátio exterior - funcional e privado. No primeiro piso instalaram-se os quartos e o sótão foi reservado a espaço de trabalho/escritório. 

As escadas, elementos importantes, vão variando na sua matéria, de acordo com os pisos que ligam, tornando-se mais leves e imateriais à medida que se vai subindo. 

Sucedeu-se a uma operação de limpeza de todo a panóplia de materiais e elementos dissonantes, permitindo ambientes homogéneos e luminosos. A ideia da curva surgiu do desenho de uma escada, cuja construção foi suspensa, mas que manifestou-se pontualmente noutros elementos, mantendo-se como ponto de partida para a intervenção e com a possibilidade de ser retomada no futuro.

 
 
 
 
 

Localização
Caxias, 2022-2023

Autoria

Mafalda Neuparth Arquitectos

Desenvolvido por
Mafalda Neuparth, André Duarte, Maria Lopez

Engenharia
Nuno Pitta Soares

Arquitectura Paisagista
João Ferreira Silva

Iluminação
Alight

Cliente
Privado

Fotografia
João Guimarães ©